V-60SL
High-performance lightweight automatic door smoothly operated by microcomputer controllers with a range of functions
Summary
The operating unit automatically opens/closes relatively lightweight doors, such as aluminum frame doors for stores or indoor partitioning doors.
It is the entry-level model of NATRUS automatic doors, the future-standard automatic door with a priority on safety.
Features
1) Self-test feature for sensors.
The door system conducts a self-test in every operation to check whether sensors are working to detect the protection area correctly.
2) NABCO network system based on CAN communication.
CAN communication technology is highly trustable in transmitting information.
3) Various setup for comfortable environment. Smart settings meet user's requirements in broad occasions.
4) Long-life design and low running costs.
Spec
You can scroll.
- Product name
-
V-60SL
- Door operator type
- V-60SL
- Door type
- Bi-parting
- Single
- Applicable door mass (kg) x door quantity *1
- 60×2
- 75×1
- Applicable door width: DW (mm)
- 650-2500
- Ratio of door height / width : DH / DW *2
- Max. 4
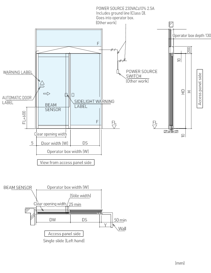
- Required power capacity
- 230VAC ± 10% 2.5A *3
- Door operation speed (m/sec)
- 0.1-0.7 *4
- Wind load (m/sec)
- 15m/s or less
*1 The door should be used under conditions where the door unit weight will not exceed the value defined in the specification. If the weight exceeds the specification, malfunction or accident will occur.
*2 The unit door aspect ratio should not exceed the value defined in the specification. If the aspect ratio exceeds the specification, the specified performance will be impaired.
*3 With a transformer specified by NABCO
*4 The speed varies according to the door weight or site environment.
Product categories
Automatic door operators
Others
-
Brochure
-
CAD data
-
V-60/85/150SL-F
Steel/Stainless sash (FB) mounted type
V-60/85/150SL-S
Surface mounted type (150 mm surface)
Instructions
DXF files are compressed into ZIP file format.After a ZIP file downloading, please decompress DXF file to view it.
To read a PDF file, you will need Adobe Reader, freeware software of Adobe Systems Incorporated.
If you are unable to view this format, please download Adobe Reader.