NAX Hermetic Door
High air tightness , aesthetics and X-ray shielding
Summary
With high air tightness and soundproofing performance, NABCO hermetic doors provide the ideal solution for healthcare facilities, laboratories, and broadcasting stations.
NABCO’s new hermetic door with high air tightness, aesthetic and safety. With the original hermetic mechanism, NAX provides high air tightness in a optimal way for various scenes.
Features
1.High air tightness:featured with high air tightness (NAX:Class A-4 MD) and 4 panel selections available.
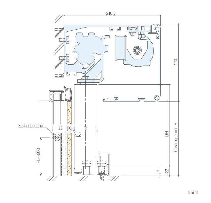
2.Aesthetics:smaller electromechanical beam dimensions and various panel options make it the ideal solution for healthcare facilities, laboratories, and broadcasting stations.
3.Can be easily opened by hand even in the event of a power failure , ensuring safety.
Spec
You can scroll.
- Product name
-
NAX Hermetic Door
- Door type
- Bi-parting
- Single
- Air-tight performance
- A-4 (JIS A 4702)
- Use applications
- Air tightness + Sound insulation
-
Air tightness + Sound insulation
+ X-ray shield
- Door leaf material
- Aluminum / Stainless steel / High pressure Laminate / Glass
- Clear opening width (W)(mm)
- 700 - 2000
- 1200 - 2800
- 700 - 1600
- 700 - 1600
- Clear opening height (H)(mm)
- 1900 - 2500
- 1900 - 2500
- 1900 - 2500
- 1900 - 2500
- Max weight
- 220kg
- Opening speed
- up to 0.7m/s
- Hold open time
- adjustable
- Ambient temperature
- -10°C - 50°C
- Relative humidity
- 20% - 85% RH
- Air permeability
- A-4 (JIS A 4702)
- Sound insulation
- T-1 (JIS A 4702)*1
- T-1 (JIS A 4702)
- X-ray shield
- -
- ○ (2mm/3mm/4mm)
- Electric lock
- ○
*1 The type of glass door leaf has T-2 class of sound insulation. If T-2 class is required for aluminum/stainless door leaf, please contact our sales distributor.
Information
NATRUS, Future-standard automatic door with a priority on safety
Full model change for top level of safety.
Product categories
Automatic door operators
Others
-
Brochure
-
CAD data
-
NAX-SG-D.pdf
NAX-SG-S.pdf
NAX-SN-D.pdf
NAX-SN-S.pdf
NAX-SX-S.pdf -
NAX-SG.dwg
NAX-SN SX.dwg
Instructions
DXF files are compressed into ZIP file format.After a ZIP file downloading, please decompress DXF file to view it.
To read a PDF file, you will need Adobe Reader, freeware software of Adobe Systems Incorporated.
If you are unable to view this format, please download Adobe Reader.