Contact Us
FAQ
About

Mini-Glide

  • NATRUS

Small automatic gliding door that has limited opening space but enables smooth passage

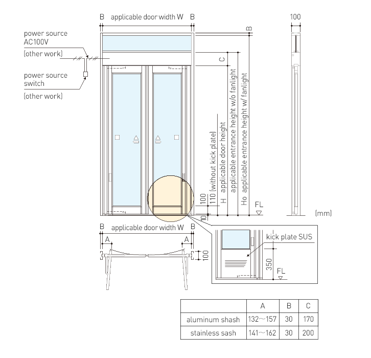
Elevation

Elevation

Section

Section

Reference

Reference

Summary

The Mini Glide is an automatic folding door that packages sashes, motors, and sensors. The door combines features of swing doors and sliding doors and offers an advantage in narrow corridors. The unique door operation does not obstruct traffic lines but enables smooth passage.

Features

1) Its elegant style won the Good Design Award.
2) The motion of the door, which does not disturb the flow of people, offers comfortable passage in a narrow corridor.
3) The simple appearance like a swing door provides a feeling of serenity.
4) Barrier-free without guide rail can be selectable for indoor use.

Spec

You can scroll.

Product name
Mini-GlideNATRUS
Door type
Double glide
Single glide
Applicable door width: DW (mm)
1000~1800
800~900
Applicable door hight: DH (mm)
~2400
Applicable entrance height w/o fanlight (mm)
H+170
Applicable entrance height with fanlight (mm)
~4000
Frame depth (mm)
100
Operator box size HW (mm)
100×170
Frame / Door material
Aluminum (White/Black/Silver/Bronze/Stainless) / Stainless steel (Hair line finish/Mirror finish)
Glass thickness
3,4,5,6,6.8(wired glass) (Recommended: 5)
Ave. open / close speed
~0.4m/s
Power supply
100V AC・5A
Wind load (m/sec)
10 m/s or less (for outdoor use) 7 m/s or less (for interior use)

Information

NATRUS, Future-standard automatic door with a priority on safety

Full model change for top level of safety.

Product categories

Contact Us