GT-1400
Summary
It has a unique folding feature that provides a much larger opening than sliding doors and dramatically reduces the door sweep.
Features
1) Equipment imported from USA, ensuring the quality.
2) For narrow passageways, can provide wide opening in limited space, ensuring easy access.
3) Hinge of door body is designed with anti-pinch structure to improve the safety of door body.
4) Have emergency opening function.
5) Conforming to ANSI 156.10, and be granted with UL, ULL, NAMI and FPA certification.
Spec
You can scroll.
- Product name
-
GT-1400
- Door type
- Standard
- Options
- Door leaf material
- Aluminum
- -
- Glass
- Tempered glass
-
Laminated glass
Insulated glass
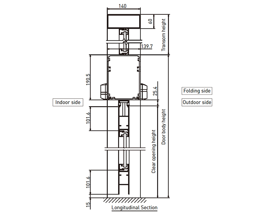
- Transom (mm)
- -
- 51/102/204
- Floor lock
- -
- Optional
- Starting probe
- EAGLE6
- Optional
- Surface treatment
- Silver oxidation
- Coating/non-ferrous oxidation
- Mullion (mm)
- 54
- -
- Upper frame (mm)
- 102
- -
- Lower frame (mm)
- 102
- -
- Transom window
- -
- Optional
- Ground rail
- -
- Full length arrangement
- Electronic lock
- -
- Optional
- Longitudinal frame (mm)
- 60x140
- -
Product categories
Automatic door operators
Others
Contact Us